Lasita Gartenhaus Orlando Blockbohlenbauweise Pultdach

Dieses klassische Gartenhaus überzeugt mit seiner Praktikabilität. Dank seines traditionsbewussten, unaufdringlichen Designs fügt es sich in jede Umgebung perfekt ein und strahlt dabei Gemütlichkeit und Heimeligkeit aus. Ob als Unterstellplatz für Gartengeräte, Grill, Fahrrad oder als Hobbyraum - das klassische Gartenhaus bietet Raum für Deine individuellen Bedürfnisse.

Das Gartenhaus mit Anbaudach und Rückwand ist sehr vielseitig. Der durch das Anbaudach geschaffene zusätzliche Stauraum eignet sich optimal als Lagerplatz für Gartenutensilien oder als Sitzbereich zum gemütlichen Verweilen. Dank Überdachung und integrierter Rückwand sind Geräte und Gartenmöbel optimal vor Wind und Wetter geschützt.

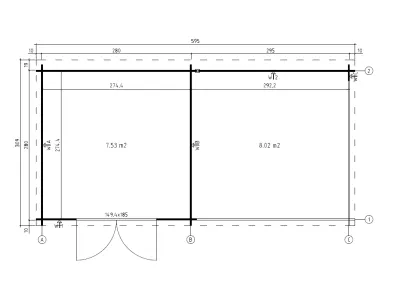
Die Grundfläche dieses Gartenhauses beträgt 16,1 m² mit einem Sockelmaß (Haus ohne Anbau) von 280 x 280 cm (B x T). Eine optimale Raumnutzung wird dank einer Firsthöhe von 211 cm gewährt.

Bei der Erstellung des Fundaments orientiere Dich an dem Grundriss bzw. an der mitgelieferten Montageanleitung! Produktblätter, Montageanleitungen und weitere wichtige Hinweise findest Du unter der Produkttabelle.

Blockbohlenbauweise

Als der Klassiker unter den Gartenhäusern verfügt ein Blockbohlenhaus über eine sehr robuste Bauweise, gepaart mit einer besonderen, natürlichen Ästhetik. Dabei orientiert sich die Bohlenbauweise an der traditionellen Blockhütte. Die Wände setzen sich aus vorgefertigten Holzbohlen zusammen, die dank einer Nut- und Feder-Verbindung ohne größere Anstrengungen aufeinander gesteckt werden können. Damit ist ein einfacher und schneller Auf- und Abbau garantiert. An der Kopfseite des Gartenhauses sorgt die charakteristische Verkämmung (spezielle Einkerbungen im Holz) nicht nur für eine schöne Optik, sondern hält das ganze Konstrukt auch zusammen und macht es absolut wind- und wetterfest.

Anbau ist spiegelverkehrt aufbaubar: Bei diesem Gartenhaus kann die Montage des Anbaus auch spiegelverkehrt erfolgen.

Wandstärke

Mit einer Wandstärke von 28 mm ist das robuste Gartenhaus der perfekte Aufenthaltsort im Sommer. Aufgrund wärmedämmender Eigenschaften des hochwertigen Holzes ist es im Inneren des Gartenhauses während der prallen Sommerhitze 3-5 Grad kühler, in den kälteren Abendstunden 3-5 Grad wärmer als draußen. So hast Du im heißen Sommer immer ein schattiges Plätzchen. Dank der soliden Wandstärke verwittert das Holz nicht so schnell und bleibt langlebig und stabil.

Materialeigenschaften

Das hochwertig gearbeitete Gartenhaus zeichnet sich durch sein ausgesuchtes, erstklassiges Fichtenholz aus. Fichte ist besonders langlebig und robust, was für die notwendige Stabilität sorgt. Außerdem überzeugt die Holzart mit geringem Gewicht, einer leichten Verarbeitung und hoher Elastizität.

Das naturbelassene Holz sorgt für ein natürliches und zeitloses Aussehen. Außerdem ermöglicht Dir das unbehandelte Holz, das Äußere des Gartenhauses ganz nach Deinen eigenen Wünschen zu gestalten.

Dachkonstruktion

  • Ein modernes Pultdach aus Massivholz mit Nut- und Federverbindung verleiht Deinem Gartenhaus eine stilvolle, elegante Optik. Durch nur eine geneigte Dachfläche ist die Nutzungsfläche im Inneren des Gartenhauses deutlich weniger eingeschränkt und der Verlust an Nutzraum gering. Zudem lässt die Neigungsseite des Pultdaches das Regenwasser gut abfließen und es ist die Montage von nur einer Regenrinne nötig.
  • Die Dachkonstruktion: 15 mm starke Dachbretter.
  • Für Flachdach- und Pultdach-Gartenhäuser empfehlen wir als langlebigen Dachbelag eine selbstklebende Dachbahn: 4 Rollen (optional erhältlich).

Ausstattung

  • In der Lieferung ist eine Doppeltür, ca. B 149,4 x H 185 cm, Türbeschlag, Profilzylinder (Echtglas) enthalten.

Empfohlenes Zubehör

  • Das Gartenhaus wird ohne Fußboden geliefert. Einen passenden Fußboden (achte auf die Serienbezeichnung) findest Du in unserem Zubehör-Sortiment.
  • Das Gartenhaus wird ohne Unterkonstruktionshölzer geliefert. Da diese das Gartenhaus vor Witterungseinflüssen, Bodenfeuchtigkeit, Schimmel und Schädlingen schützen, ist die Anschaffung einer Unterkonstruktion dennoch zu empfehlen. Die Art der Unterkonstruktion hängt dabei von der Art des Untergrunds und des Fundaments ab. Passend für Deinen Untergrund bieten wir Konstruktionshölzer aus Holz, WPC oder Aluminium, die mit ihrer Langlebigkeit überzeugen. Unter Gartenhaus-Zubehör findest Du alternativ einen passenden Fußboden inkl. kesseldruckimprägnierter Unterkonstruktion, sowie das nötige Montagematerial.

LASITA – DER SPEZIALIST FÜR GARTENHÄUSER

Das estnische Unternehmen ist darauf spezialisiert, hochwertigste Holz Gartenhäuser und Überdachungen in verschiedenen Formen und Größen herzustellen. Stabile Hölzer und passgenaue Fertigung tragen dazu bei, ein langlebiges Produkt zu erhalten, das sehr gut den Witterungseinflüssen trotzt. Lasita – High Quality aus Estland

Zubehör

Bewertungen unserer Kunden

4.64
5
4
3
2
1